Mäntsälä rakentaa turvallista arkea

3.2.2026 yleiset alueet

Vuonna 2026 Mäntsälässä keskitytään teknisen investoinneissa arjen sujuvuuteen turvallisuuteen ja elinvoiman vahvistamiseen.

Teknisen nettoinvestoinnit ovat tänä vuonna n. 8,5 miljoonaa euroa, joista suurin osa kohdistuu katuihin ja yleisiin alueisiin. Näillä panostuksilla varmistetaan, että kunnan tilat, liikenne ja infrastruktuuri palvelevat asukkaita entistä paremmin – niin jalan, pyörällä kuin autolla liikkuen.

Turvallista liikkumista – siltoja, väyliä ja risteysjärjestelyjä

Alkukevään aikana käynnissä on useita projekteja, jotka vaikuttavat eri puolilla kuntaa:

  • Koskenrannan sillan uusiminen keskustassa. Sillan ollessa osittain poissa käytöstä kuntalaisia pyydetään seuraamaan kunnan tiedotteita liikennejärjestelyistä.
  • Vuolteenmetsäntien uusi kevyen liikenteen väylä parantaa jalankulun ja pyöräilyn sujuvuutta sekä turvallisuutta.
  • Uusi jalankulku- ja pyöräilyväylä rakennetaan Hirvihaarantielle välille Kuntomajantie – Sepänmäki. Rakennustyöt ovat jo alkaneet. Rakentamisen aikana työmaa-alueella alennetaan ajonopeuksia liikenneturvallisuuden varmistamiseksi.
  • Liikenneturvallisuuden pienet toimenpiteet eri puolilla kuntaa – muun muassa Sälinkääntien–Riihenmäentien liittymässä.
  • Papanapolun katualueen rakentaminen käynnistyy helmikuussa.
  • Kapulin yritysalueella tehtävät risteyslevitykset ja viherrakentaminen voivat aiheuttaa tilapäisiä liikennerajoituksia, mutta valmistuessaan ne helpottavat liikkumista ja tukevat alueen yritystoimintaa.
  • Katuvalaistuksen ohjausjärjestelmä päivitetään nykyaikaan.

Pitkäjänteisillä hulevesiratkaisuilla ehkäistään tulvia

Hulevesien hallinta on keskeinen osa Mäntsälän kunnan kestävää ja turvallista ympäristöä. Mäntsälässä jatketaankin pitkäjänteistä työtä tulvien ehkäisemiseksi:

  • Jukolanpolulle rakennetaan uusi hulevesiallas ja alueen kuivatusta parannetaan ojien kaivamisella. Työt alkavat viikolla 6.
  • Hyökännummella jatketaan edellisvuosien tapaan hulevesitöitä.
  • Jäähallin ojituksen putkitus alkaa helmi-maaliskuun aikana.
  • Keskustassa edistetään hulevesiviemäreiden ja viivytysaltaiden rakentamista.

Toimitilarakennuksien kunnossapitoa ja uusien koulutilojen valmistelu

  • Ehnroosin koulun (ent. Myllymäen koulun) tarveselvitys valmistuu kevään aikana.
  • Seurojentalon käytäväremontin viimeinen vaihe käynnistyy huhtikuussa.
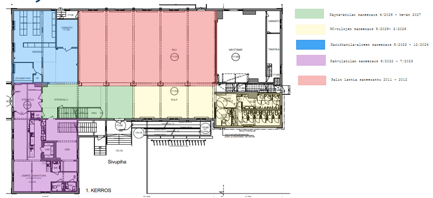
    Wc-tilojen remontti (keltainen alue) valmistuu maaliskuun lopussa, jonka jälkeen jatkuu käytävätilan remontti (vihreä alue). Kohteessa on tehty useina vuosina alakerran remonttia vaiheittain, jossa mm. lattiarakenteet on uusittu kokonaan. Vaiheittain toteutus on mahdollistanut muiden tilojen käyttöä remontin aikana. Rakennus on remontista huolimatta koko ajan vuokrattavissa.
Kahvilatila
Narikka-alue

Uusi wc-tila, havainnekuva

  • Kunnan rakennuksissa on toteutettu jo usean vuoden ajan energiasäästötoimenpiteitä. Näillä toimenpiteillä lisätään energiatehokkuutta ja vähennetään käyttökustannuksia. Tänä vuonna toteutetaan aurinkosähköjärjestelmien asennusta Sälinkään, Saaren ja Nummisten kouluille.

Seuraa kunnan ajankohtaista hanketiedotusta kunnan kotisivuilta, niin pysyt helposti kartalla työn etenemisestä ja mahdollisista vaikutuksista arkeesi!

Lue myös